
Wir erfüllen die Anforderungen und Spezifikationen unserer Kunden gemäß den Industriestandards und übertreffen die Erwartungen unserer Kunden
Wir legen Wert auf Genauigkeit in Zeichnungen und Entwürfen. Dadurch können wir unseren Kunden äußerst präzise, klare und leicht verständliche Ergebnisse präsentieren.
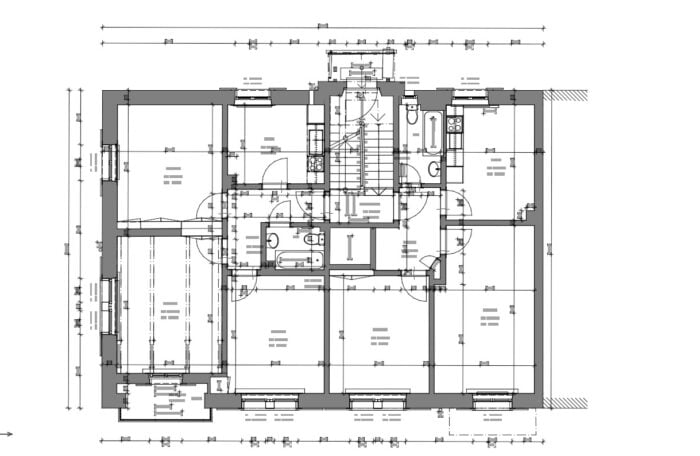
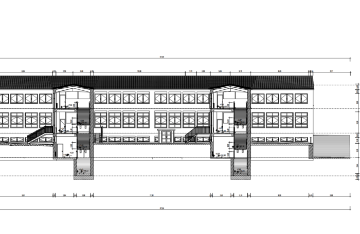
Konstruktionszeichnung
Stückliste (BOM)
As-Built-Zeichnung
We successfully cope with tasks of varying complexity, provide long-term guarantees and regularly master new technologies.
+84 28 2200 0403
Anna Building, Quang Trung Software City
Tan Chanh Hiep Ward, Dist. 12
Ho Chi Minh City,
Vietnam